Palm terrace villa60Two-story house(South) ~Palm terrace villa~
| カテゴリー | 建売住宅 |
|---|---|
| エリア | 千葉エリア |
| 土地・建物説明 | カリフォルニア工務店が手掛ける大型分譲プロジェクト“全37区画” 今回の物件は“2階建てプラン” 外壁3種をMIXさせた特徴的なファサード! 大きな吹き抜けの気持ちよさ、、 この魅力やスケール感ははスケッチや写真じゃ分からない! 是非!現地でご確認ください! |
| 所在地 | 茂原市下太田字茂六藏332-27 |
| 住居表示 | 茂原市下太田332-27 |
| 建売価格 | 4480万円(税込) |
| 土地面積 | 212.85㎡(64.38坪) |
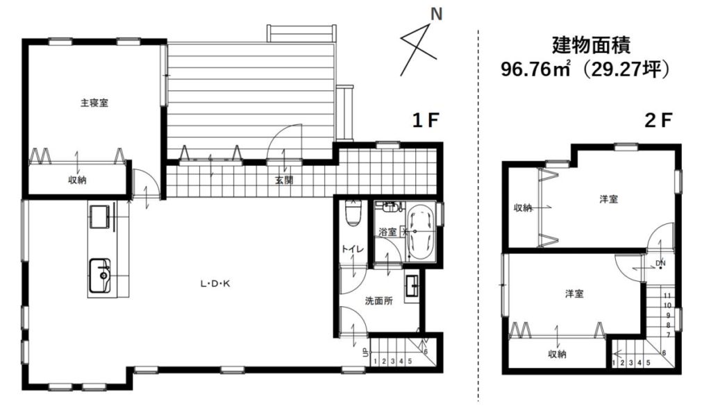
| 建物面積 | 96.76㎡(29.27坪) |
| 交通 | 外房線「本納」駅 徒歩29分 圏央道「茂原北IC」1.5Km |
| 都市計画 | 未指定 |
| 用途地域 | 未指定 |
| 建ぺい率 | 60% |
| 容積率 | 200% |
| 地目 | 宅地 |
| 道路幅員 | 北西側6m |
| 現況 | 建築中 |
| 土地の権利形態 | 所有権 |
| 引渡予定時期 | 2025年9月予定 |
| その他 | 建築確認番号:UDI1C建09125号 ・木造2階建 ・3LDK ・車庫2台 ・公営水道、都市ガス、浄化槽 【完成イメージスケッチについて】 完成イメージスケッチは計画段階における完成予想図であり、実際の建物・外構・植栽・仕様・色彩等とは一部異なる場合がございます。 また、建築確認申請・施工段階等において設計が変更される可能性があります。 あらかじめご了承の上、最新の図面・仕様書等はスタッフまでご確認ください。 |

















